
海湾消防(海源质惠)GST2321ZG输入/输出模块,有源输出,火灾报警时,报警控制器通过输出部分启动需要联动的外控杏彩网页版,如防排烟阀、送风阀、切电等,通过输入部分可接受杏彩网页版的动作回答,并将信号上传给报警控制器,采用二总线进行通信。
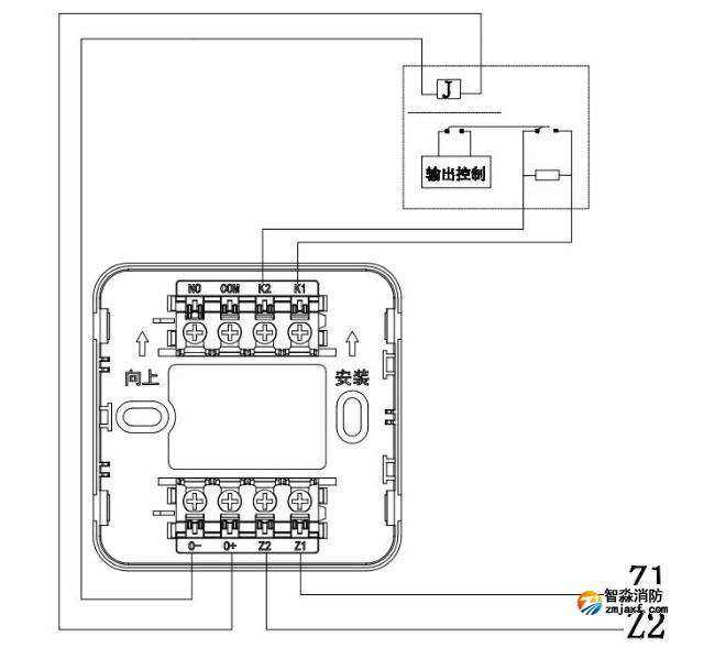
GST2321ZG输入输出模块接线图:

本模块有源输出只能提供脉冲信号,不能持续输出。
模块输出不需接入终端电阻。
GST2321ZG输入输出模块接线端子说明:
Z1、Z2:总线接口,无极性;
K1、K2:输入反馈,触点信号;
O+、O-:有源输出(DC32V/1.5A/25ms)。
江苏苏州智淼消防安装杏彩(中国)公司主营:北京消防施工安装,消防杏彩(中国)设计,消防维修改造,消防杏彩网页版检测,消防验收代办,消防维修保养,探测器清洗,消防检测杏彩网页版,智慧消防物联网,消防杏彩网页版销售安装及调试为一体的正规化消防企业。消防改造网址:/;服务热线:4006-598-119







苏公网安备32058102002151号